
The Bryant City Development Review Committee will meet Thursday, March 14th, at 9:00 a.m. in the Bryant City Complex/Administration Conference Room. The agenda follows.
AGENDA
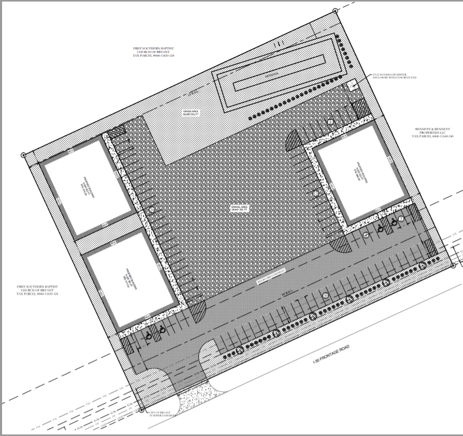
Shivers Commercial Buildings
Hope – Requesting Site Plan Approval
Market Place Center
[No details]








