
The Bryant City Development Review Committee will meet Thursday, February 28th, at 9:00 a.m. in the Bryant City Complex/Administration Conference Room. The agenda follows.
AGENDA:
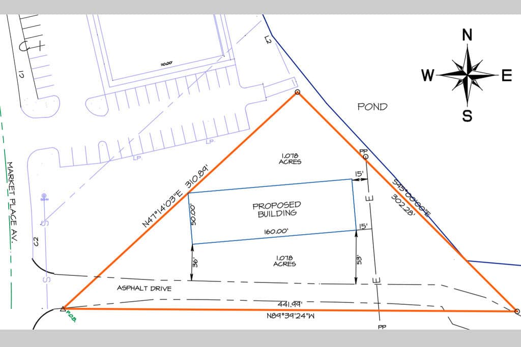
The Stables
Richardson – Requesting Final Plat Approval
Ashley Group Warehouse/Storage
GarNat – Requesting Site Plan Approval
Documents:
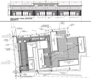
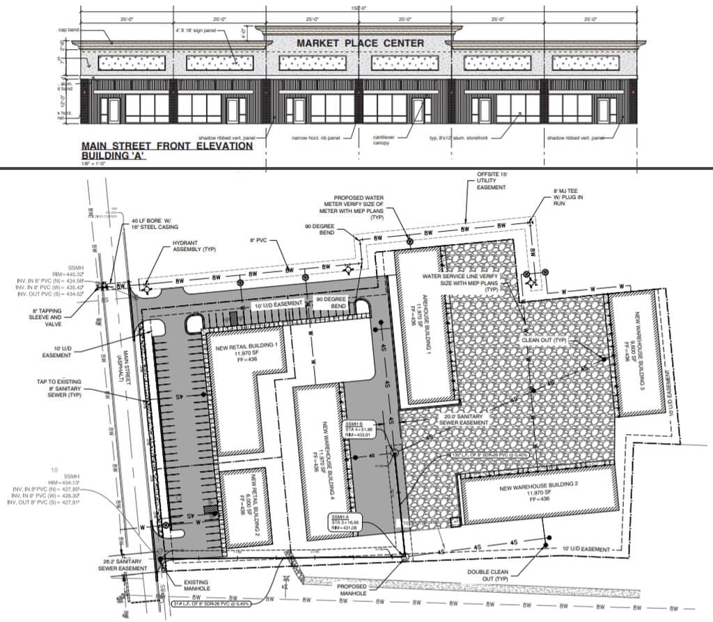
Market Place Center
GarNat – Requesting Site Plan and Concept Plan Approval
Documents:
Don Pepe’s
Requesting Sign Permit Application Approval











